FRANCE PATRIMOINE ET INVESTISSEMENTS Agence
Télécharger la fiche
Nouveauté

Appartement 2 pièce(s) 1 chambre(s) 52.55 m²

Bordeaux (33800)
235 089 € Référence NF50030

A propos de ce bien

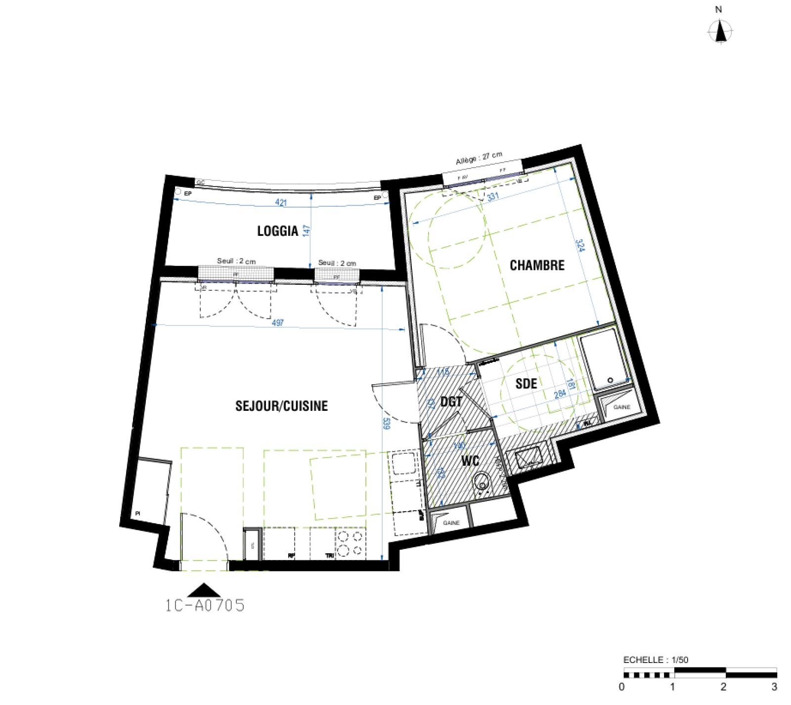
Ce beau T2 de 52,55 m² disponible se trouve entre la Garonne et les 8 hectares du jardin de l’Ars, au cœur du quartier dynamique Belcier Euratlantique.

L’entrée s’ouvre sur un séjour lumineux de 28,23 m² avec son espace cuisine. Le salon donne sur une jolie loggia de 6,62 m², permettant de prendre un bol d'air frais, l’appartement propose une chambre de 12,14 m², une salle d’eau ainsi qu’un WC séparé. Un bien lumineux, fonctionnel et idéalement situé dans un quartier en plein essor ! Une place de parking est également comprise ! 

Profitez de l'avantage ANRU avec la TVA réduite à 5,5% ! Frais de notaire réduits. 

Pour l'accession libre, contactez-nous.

POUR TOUT AUTRE RENSEIGNEMENT, ORGANISER UNE VISITE VEUILLEZ APPELER NOTRE AGENCE AU 05 56 28 43 70 

IMMOBILIA FPI - BORDEAUX ORNANO "Immobilia, avec vous, proche vous" 


Les informations sur les risques auxquels ce bien est exposé sont disponibles sur le site Géorisques

Caractéristiques de ce bien

  • Surface 52,55 m²
  • carrez 49,24 m²
  • séjour 28,23 m²
  • 1 chambre(s)
  • 1 salle(s) d'eau
  • construit en 2025
  • cuisine américaine (semi-équipée)
  • Chauffage trad_format_chauff_urbain : radiateur (mixte)
  • exposition Nord
  • 7ème étage
  • 7 étage(s)
  • ascenseur
  • vue Entre le fleuve et les plus de 8 hectares du Jardin de l'Ars
  • terrasse
  • interphone
  • quartier BELCIER EURATLANTIQUE, EURATLANTIQUE-BELCIER

Diagnostics énergétiques

Consommation énergétique
A B C D E F G
Emission de gaz à effet de serre
A B C D E F G
DPE vierge

Informations financières

Prix de vente 235 089 € Les honoraires d'agence seront intégralement à la charge du vendeur
Dépôt de garantie TTC 1 500 €
Charges 98 €

Informations de copropriété

Copropriété Oui
Lot n° 041ca705
Nombre de lots 62
Quote part annuelle des charges 1 176 €
Plan de sauvegarde Non
Statut du syndic Pas de procédure en cours

Calcul des mensualités

* Champs obligatoires