FRANCE PATRIMOINE ET INVESTISSEMENTS Agence
Télécharger la fiche
Nouveauté

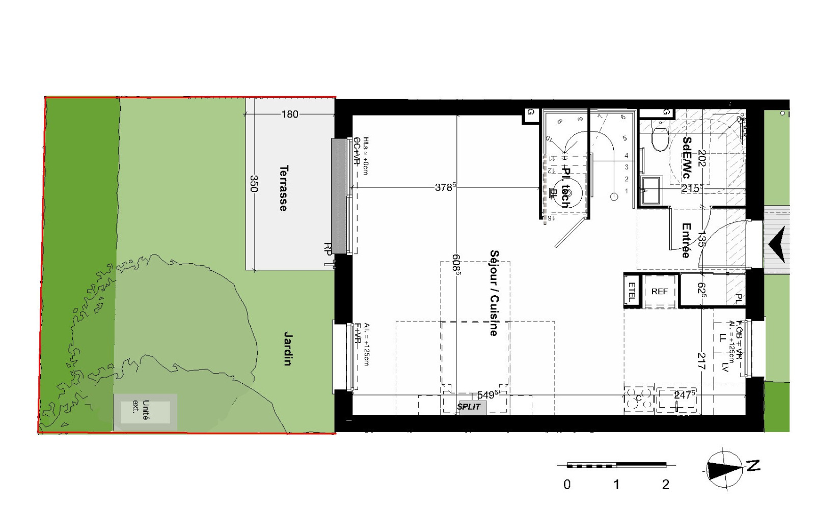
Maison 4 pièce(s) 3 chambre(s) 96.97 m²

Pessac (33600)
460 000 € Référence VNM 50013

A propos de ce bien

PESSAC PROCHE LYCÉE PAPE-CLÉMENT ET UNIVERSITÉS - JOLIE MAISON  T4  DUPLEX - TROIS CHAMBRES - JARDIN PRIVATIF DE 45 M²  - PLACE DE  PARKING PRIVATIVE - TRÈS  BELLES FINITIONS - CLIMATISATION POMPE A CHALEUR.    CHEZ VOUS EN JUIN , FRAIS DE NOTAIRE RÉDUITS - VOUS CHERCHEZ UNE BELLE MAISON, MODERNE AVEC TOUTES LES GARANTIES ET SURTOUT AUX DERNIÈRES NORMES...VOUS Y ÊTES, ENTREZ ET RÉSERVEZ.

DEUX MAISONS SEULEMENT : UNE A 260.000 € UNE SECONDE A 275.000 € 

IMMOBILIA" AVEC VOUS, PROCHE DE VOUS" AGENCE BORDEAUX ORNANO (vis Google immobiliafpi)


Les informations sur les risques auxquels ce bien est exposé sont disponibles sur le site Géorisques

Caractéristiques de ce bien

  • Surface 96,97 m²
  • séjour 3 635 m²
  • 3 chambre(s)
  • 1 salle(s) de bain
  • 1 salle(s) d'eau
  • construit en 2024
  • Chauffage individuel : air pulsé (electrique)
  • 1 parking(s)
  • exposition Sud
  • 1 côté(s) mitoyen(s)
  • 2 niveau(x)
  • vue JARDIN PRIVATIF
  • terrasse
  • arboré
  • interphone

Diagnostics énergétiques

Consommation énergétique
A B C D E F G
Emission de gaz à effet de serre
A B C D E F G
DPE vierge

Informations financières

Prix de vente 460 000 € Les honoraires d'agence seront intégralement à la charge du vendeur
Dépôt de garantie TTC 5 000 €

Calcul des mensualités

* Champs obligatoires