 
         
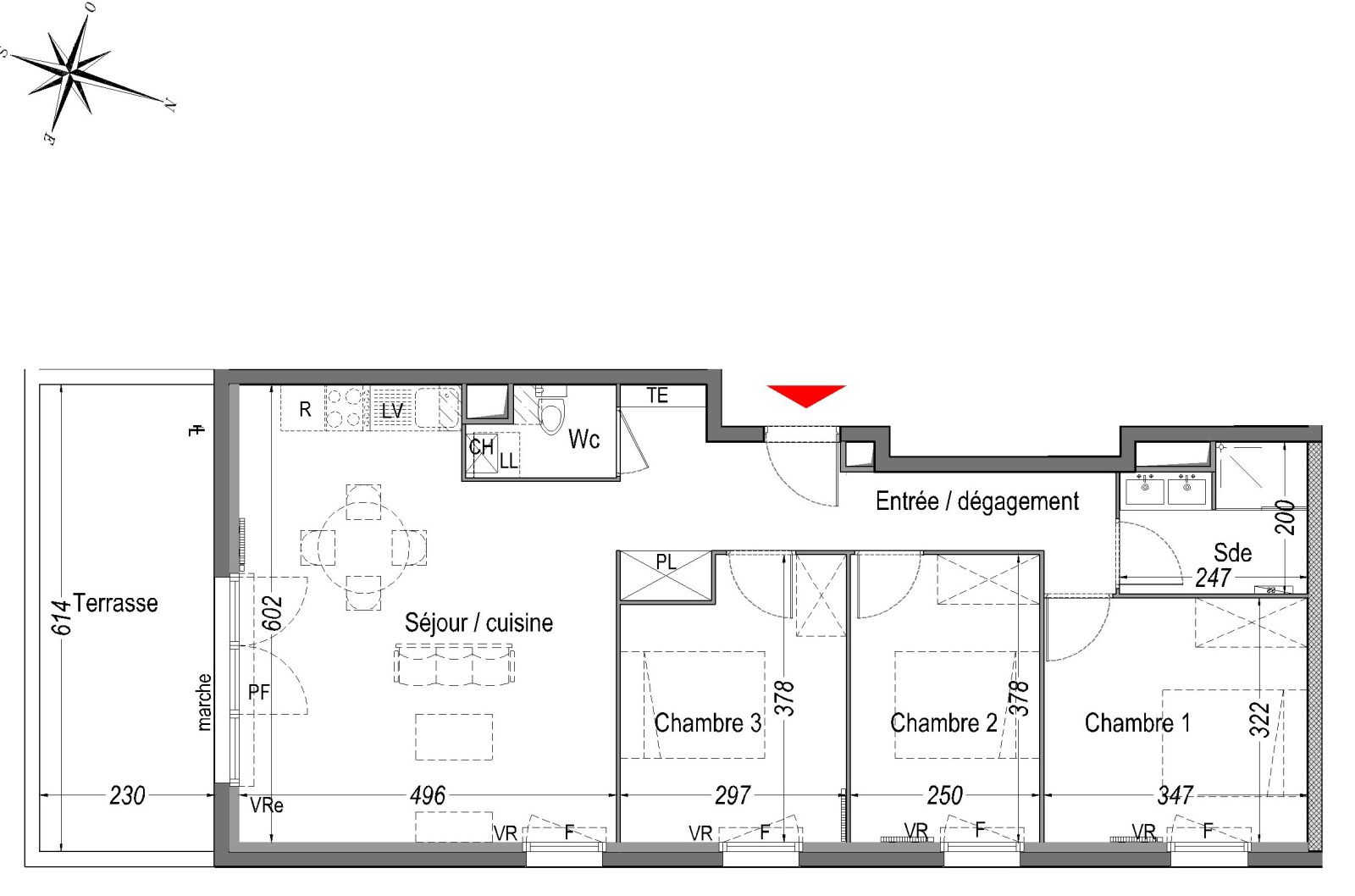
                Appartement 4 pièce(s) 3 chambre(s) 81 m²
Cenon (33150)A propos de ce bien
CENON-BORDEAUX METROPOLE - OPPORTUNITE UNIQUE POUR HABITER DEVENIR PROPRIETAIRE EN FRAIS DE NOTAIRE REDUITS ET POSSEDER UN APPARTEMENT NEUF AUX DERNIERES NORMES- TROIS CHAMBRES- EXPOSITION SUD-EST - CHAUFFAGE GAZ INDIVIDUEL - PARKINGS SOIUS SOL- RESIDENCE ARBOREE-
VITE....POUR ÊTRE CHEZ VOUS FIN SEPTEMBRE EN AGISSANT DES MAINTENANT AVEC VOTRE SPECIALISTE IMMOBILIA FPI BORDEAUX ORNANO AGENCE 05 56 28 43 70 COMMERCIAL 06 63 47 14 01;
Les informations sur les risques auxquels ce bien est exposé sont disponibles sur le site Géorisques
Caractéristiques de ce bien
- Surface 81 m²
- 3 chambre(s)
- construit en 2025
- Chauffage individuel : radiateur (gaz de ville)
- exposition Sud-Est
- 2ème étage
- 4 étage(s)
- ascenseur
- vue RESIDENCE
- terrasse
- visiophone
- interphone
- quartier QUATRE PAVILLONS
 
             
                                 
                                 
                                 
                                 
                                 
                                 
                            