FRANCE PATRIMOINE ET INVESTISSEMENTS Agence
Télécharger la fiche
Coup de coeur

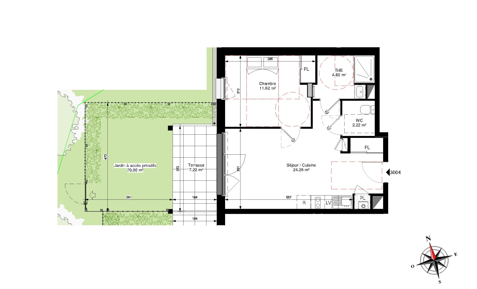
Rez de jardin 2 pièce(s) 1 chambre(s) 50 m²

Pornichet (44380)
269 000 € Référence VN 50023

A propos de ce bien

PORNICHET PROCHE HIPPODROME Boulevard du Baulois, appartement T2 avec sa terrasse et son jardin privatif clos. Résidence aux normes RE 2020 -  classement DPE A  - Exposition Ouest - Entrée séjour cuisine aménagée, chambre avec placard, salle d'eau , wc séparé - normes PMR. Sols parquet stratifié dans les chambres, carrelages 45x45 dans les pièces humides, volets roulants motorisés. Personnalisation possible. Appartement idéal pour réaliser un investissement locatif dans une ville à forte demande avec  peu ou pas d'offre locative longue durée ou votre premier "chez vous" - Patrimoine valeur sure proche de tout à quelques minutes ( Mairie, Gare, Intermarché, Halles, Crêche Ecoles et Collège Sacré Coeur etc.)

Renseignements et réservation  TEL 06 63 47 14 01 "IMMOBILIA , avec vous, proche de vous" .


Les informations sur les risques auxquels ce bien est exposé sont disponibles sur le site Géorisques

Caractéristiques de ce bien

  • Surface 50 m²
  • carrez 42,92 m²
  • séjour 24 m²
  • 1 chambre(s)
  • 1 salle(s) d'eau
  • construit en 2025
  • cuisine américaine (équipée)
  • Chauffage individuel : radiateur (electrique)
  • 1 parking(s)
  • exposition Ouest
  • 1 niveau(x)
  • 4 étage(s)
  • vue JARDIN PRIVATIF
  • terrasse
  • visiophone
  • interphone
  • quartier HIPPODROME
  • accès handicapé

Diagnostics énergétiques

Consommation énergétique
A B C D E F G
Emission de gaz à effet de serre
A B C D E F G
DPE en cours

Informations financières

Prix de vente 269 000 € Les honoraires d'agence seront intégralement à la charge du vendeur
Dépôt de garantie TTC 1 500 €
Charges 75 €

Informations de copropriété

Copropriété Oui
Lot n° B3-3004
Nombre de lots 30
Quote part annuelle des charges 900 €
Plan de sauvegarde Non
Statut du syndic Pas de procédure en cours

Calcul des mensualités

* Champs obligatoires