FRANCE PATRIMOINE ET INVESTISSEMENTS Agence
Télécharger la fiche

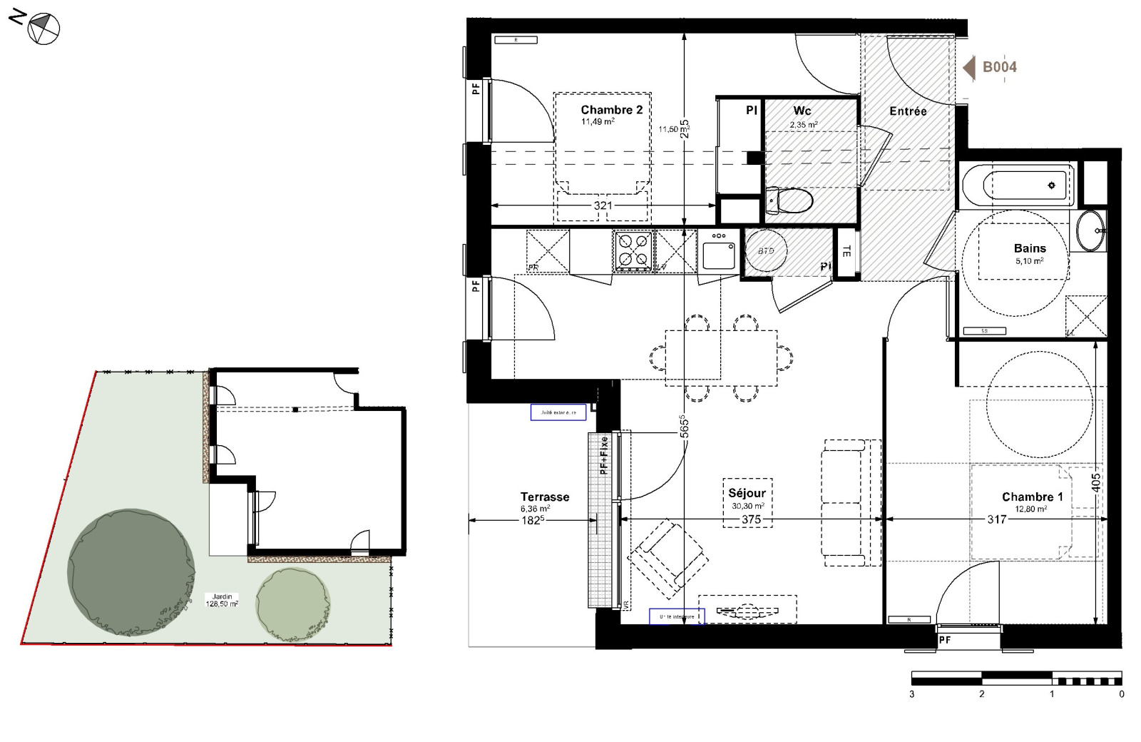
Rez de jardin 3 pièce(s) 2 chambre(s) 70 m²

Audenge (33980)
305 000 € Référence VN 50029

A propos de ce bien

AUDENGE - DANS UNE RESIDENCE INTIMISTE DE 19 APPARTEMENTS - ARCHITECTURE TYPIQUE DU BASSIN RESPECTEE, SAISISSEZ CETTE OPPORTUNITE DE PLUS EN PLUS RARE D'INVESTIR DANS UN APPARTMENT T3 NEUF AVEC JARDIN PRIVATIF DE 128M² COMME UNE MAISON MAIS BIEN MOINS CHER - CONSRUCTION DE DERNIERE GENERATION ET AUX DERNIERES NORMES D'ISOLATION THERMIQUE PHONIQUE ET ACOUSTIQUE (RT 2020) - SUCCES LOCATIF ASSURE POUR UN INVESTISSEUR ECLAIRE OU UNE VALORISATION PATRIMONNIALE GRACE A UNE TRES FORTE DEMANDE. LE CENTRE COMMERCIAL DE BIGANOS " LES PORTES DU BASSIN" N'EST QU'A QUELQUES MINUTES, C'EST AUSSI LE PLUS GRAND GISEMENT D'EMPLOIS DU SECTEUR-LA PIERRE EST TOUJOURS VOTRE ALLIEE PATRIMONIALE, PROGRAMME SELECTIONNE PAR IMMOBILIA SPECIALISTE DE L'IMMOBILIER NEUF DEPUIS PLUS DE VINGT ANS;

ENTREE - SEJOUR AVEC CUISINE US AMENAGEE - DEUX GRANDES CHABRES - SALLE DE BAINS AVEC BAIGNOIRE, VASQUE, W.C. séparé normes PMR ; JARDIN PRIVATIF ENGAZONNE DE 128 M² AUTOUR DE SES DEUX COTES ET TERRASSE.

POUR TOUT RENSEIGNEMENT OU RESERVER (c'est le dernier T3 avec jardin, la Rolls du locatif)

APPELEZ L'AGENCE IMMOBILIA BORDAUX ORNANO AU 0556 28 43 70 OU COMMERCIAL 06 63 47 14 01.

"Immobilia, avec vous, proche de vous"


Les informations sur les risques auxquels ce bien est exposé sont disponibles sur le site Géorisques

Caractéristiques de ce bien

  • Surface 70 m²
  • carrez 62,04 m²
  • séjour 30,30 m²
  • 2 chambre(s)
  • 1 salle(s) de bain
  • construit en 2024
  • cuisine américaine (semi-équipée)
  • 2 parking(s)
  • exposition Nord-Ouest
  • 1 étage(s)
  • vue JARDIN PRIVATIF
  • terrasse
  • visiophone
  • interphone
  • accès handicapé

Diagnostics énergétiques

Consommation énergétique
A B C D E F G
Emission de gaz à effet de serre
A B C D E F G
DPE vierge

Informations financières

Prix de vente 305 000 € Les honoraires d'agence seront intégralement à la charge du vendeur
Dépôt de garantie TTC 1 500 €
Charges 85 €

Informations de copropriété

Copropriété Oui
Lot n° B-004
Nombre de lots 19
Quote part annuelle des charges 1 200 €
Plan de sauvegarde Non
Statut du syndic Pas de procédure en cours

Calcul des mensualités

* Champs obligatoires